
From smart software to full measurement services, we cover tender, construction, and final accounts end‑to‑end.
Explore MoreEvery project has unique requirements and presents its own set of challenges. We strive to consistently exceed our clients' expectations.
Know more
Recognized as one of the most efficient and innovative rebar measurement services in Hong Kong, fully aligned with BS8666 standards.

We offer rebar prefabrication services that leverage precise quantity take-offs and bar schedules to optimize fabrication workflows, reduce material waste, and accelerate construction timelines.

Our combined service drawings integrate structural, MEP, and rebar layouts into a coordinated 3D model—enhancing clash detection and improving buildability.
Cubicost TAS has been officially nominated by Sino Property for the quantification of formwork and concrete works.

We provide not only accurate 3D modeling but also detailed quantity take-offs based on client-specific requirements once the model is developed.
Cubicost TRB is endorsed by Sino Property for the measurement and take-off of reinforcement (rebar) quantities.
RT Measurement is one of the software tools we use to provide measurement services. It was developed by us for structural measurement, based on measurement standards and practical experience in Hong Kong. It aims to deliver a user-friendly experience, smoothly handle different measurement stages, and efficiently manage disputed items.

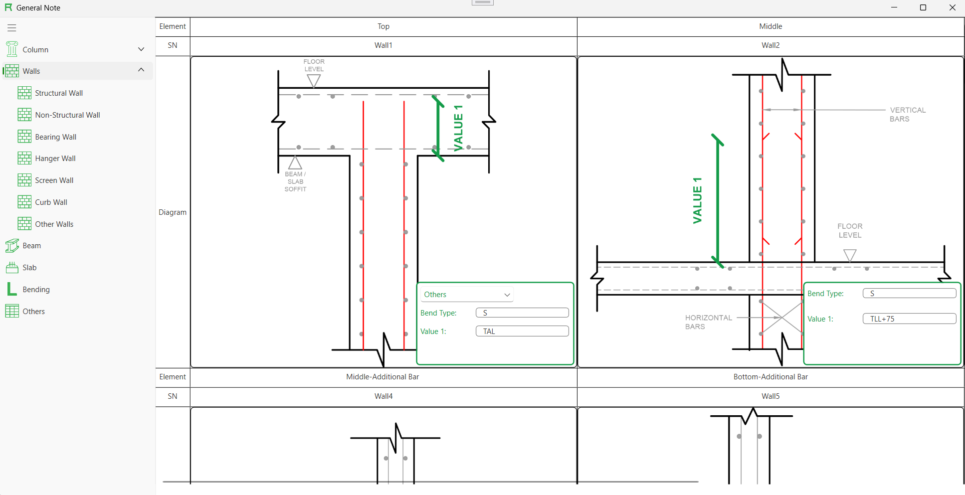
Presentation is important for quantity auditing. A clear presentation helps different parties trust and agree on the quantities. Diagram views are the most effective way to present them. In RT Measurement, we offer multiple methods to present quantities through diagram views.


Speed and Efficiency No matter how accurate the measurement is, arguments between different parties are common. It is important not only to provide clear proof and evidence but also to revise quantities efficiently in order to close the project earlier.

Fully compliant with BS8666 standards and aligned with HKHA and ASD requirements

Supports traditional bar bending schedules in Excel format. Compatible with CAD, PDF, and image-based workflows.

Embedded typical details ensure no possible information is missed, while the auto-checking feature helps prevent any missing items, providing a complete and reliable measurement process.
| Features | RT Measurement | Tranditional Approach | Other Software |
|---|---|---|---|
| Support Schedule and Diagram | check_circle | check_circle | remove_circle |
| Supports Concrete Measurement | check_circle | remove_circle | remove_circle |
| Fully Complice with BS 8666 | check_circle | check_circle | remove_circle |
| Support Steel Ratio | check_circle | remove_circle | remove_circle |
| Quantity-Drawing Linking | check_circle | remove_circle | check_circle |
| Update based on requirement of HK Market | check_circle | remove_circle | remove_circle |
| Auto Insepction | check_circle | remove_circle | check_circle |

Rooftop BIM Limited provides integrated solutions that aim to reduce human resources, simplify organization structure and expand clients' business scale. All of these are made possible by applying project visualization, A.I. and BIM Technology.


+852 3575 0837
Mon-Fri
9:00 AM - 6:00 PM
Info@rooftopbim.com